Siemens Healthineers
Sector
Health & Wellbeing
Corporate Urbanism
Services
Place Vision
Strategic Development
Delivery
Team
Jorick Beijer
Christian Pappalardo
CHALLENGE
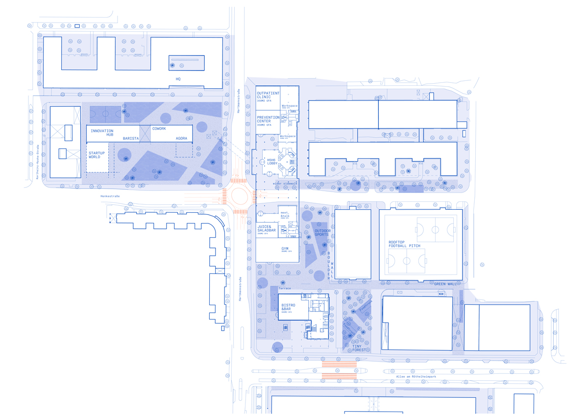
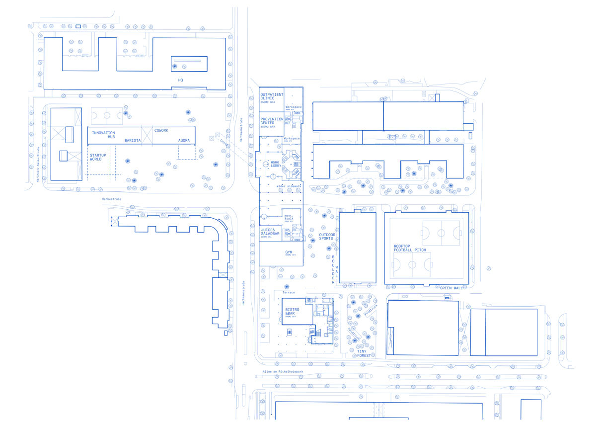
To transform the iconic but vacant, Henkestrasse 127 building on the Global HQ of Siemens Healthineers in Erlangen into an innovation hub with short-stay co-living to drive serendipitous creativity and boost talent attraction.
The second half of the challenge was to develop a campus-wide masterplan focused on reconnecting introvert building typologies in Erlangen and creating a landscape between the buildings that fosters a sense of belonging and community by providing a public space for meaningful interaction.
RESPONSE
We acted as an in-house campus master planning team, retained by Siemens’ Global Real Estate department. Initial consultation began with an analysis of rental contracts and building typologies off-campus and devising a business case that consolidates existing and new programmes in the Henkestrasse 127 building.
We then followed a more spatial approach and developed a series of detailed scenarios for a mixed-use programme at Henke127 (office, co-working, experience centre, public agora, residential). The ‘living-working-learning’ positioning was supported by a clear vision of how Siemens and the Friedrich-Alexander-Universität Erlangen together shape a unique innovation ecosystem in the medtech space, supported by a significant co-living programme to attract and retain international talent on campus.
Finally, Blossity translated the public-private innovation typology of Henke127 into a methodology that can be expanded over the entire Siemens Healthcare campus. Here we started from a master plan level, looking at ways to open the ground floor of disconnected, introverted office buildings to create a fluid campus landscape. We developed interventions for several key buildings, translated these into a long-term investment planning, and proposed a set of short-term placemaking initiatives that activate the critical spaces between the buildings.



THE IMPACT
Siemens Healthineers is a global powerhouse in healthcare with a 120-year track record of industry firsts. The world headquarters in Germany has the unique potential to materialise these innovations as we gradually open up the campus and transform it into a health & wellbeing destination for global talent and the citizens of Erlangen.
As in-house consultants we were able to translate internal demand drivers into an attractive concept for Henke127 and develop a spatial framework for the campus that can be leveraged by the Siemens real estate team in the coming years.





